Papers by David Ussishkin
Antigue Oriente 22, 2024, pp. 69-98, 2024
Lachish, a central Canaanite and Judean city in the Southern Levant during the Bronze and Iron Ag... more Lachish, a central Canaanite and Judean city in the Southern Levant during the Bronze and Iron Ages, was heavily fortified during different periods. Four different fortification systems dated to different periods have been uncovered in the extensive archaeological excavations carried out there. The present paper discusses these fortification systems, which turned Lachish into one of the strongest fortress cities of the biblical era in the Southern Levant. In several papers Yosef Garfinkel and his colleagues challenged James Starkey's and our conclusions and interpretations regarding the character and date of the fortifications. In my view none of their suggestions are acceptable.

Antigue Oriente, vol 21, 2024, pp. 11-40, 2024
The Date of the City Walls of Jerusalem during the Biblical Period. In a previous paper I summari... more The Date of the City Walls of Jerusalem during the Biblical Period. In a previous paper I summarized my views on the date of the city walls of biblical Jerusalem. I have argued that Jerusalem was surrounded by a city wall for the first time in the late 8 th century BCE, only after the Southwest Hill was settled and became part of the city. Beforehand, during the Bronze Age and earlier parts of the Iron Age, Jerusalem was an unfortified settlement. New important discoveries have recently been made in various excavations continuously being carried out in the City of David. The present paper evaluates and summarizes afresh the relevant excavated data. In my view, the newly uncovered data reaffirm the conclusion that Jerusalem was surrounded by a city wall for the first time in the second half of the 8th century BCE. Quite possibly the city wall surrounding Jerusalem of that period was built by Ahaz King of Judah or his son Hezekiah.
Gabriel Barkay Festschrift: Gabriel, Tell This Man the Meaning of his vision, 2024
The paper was published in the Gabriel Barkay Festschrift. It discusses the fortifications of Bet... more The paper was published in the Gabriel Barkay Festschrift. It discusses the fortifications of Betar, near Jerusalem, the last stronghold of the Second Jewish Revolt in the 2nd century CE. The paper argues that the fortifications assigned to the Middle Bronze Age are all later in date.
Published in Israel Exploration Journal 72, 2022, pp. 49-65,
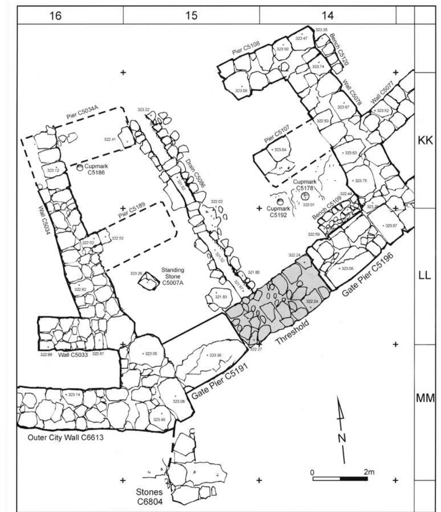
Published In Israel Exploration Journal 72, 2022, pp. 49-65. The paper argues that the Iron Age s... more Published In Israel Exploration Journal 72, 2022, pp. 49-65. The paper argues that the Iron Age site of Khirbet Qeiyafa was a sacred cultic compound frequented by pilgrims rather than a proper fortified settlement. It is suggested that the casemate wall surrounding the site served as a compound wall demarcating the cultic precinct.
Published in Palestine Exploration Quarterly 155, 2023, pp. 91-110
Published in Palestine Exploration Quarterly 155, 2023, pp. 91-110. Between 2013-2017 Garfinkel e... more Published in Palestine Exploration Quarterly 155, 2023, pp. 91-110. Between 2013-2017 Garfinkel et al. conducted excavations at Tel Lachish/Tell ed-Duweir. Their conclusions regarding the character and date of the site's fortifications radically differ from the conclusions of the British excavations headed by Starkey and Tel Aviv University excavations headed by me. The interpretation and date made by Garfinkel et al. cannot be accepted. The fortifications uncovered by them fit what was known before about the fortifications of Tel Lachish and their date.
Published in Oxford Journal of Archaeology 42, 2023, pp. 17-31.
Published in Oxford Journal of Archaeology 42, 2023, pp.17-31. In a recent paper Shlomit Bechar a... more Published in Oxford Journal of Archaeology 42, 2023, pp.17-31. In a recent paper Shlomit Bechar analyzed the appearance and use of basalt orthostats in Hazor. The present paper is an addendum to Bechar's paper, elaborating the subject of the basalt lion orthostats found at Hazor. The paper discusses the original position of the lions, their date, style, function and fate.
Near Eastern Archaeology 77, no. 1, 2014, pp. 15-26
Qadmoniot 45, no. 144, 2012, pp. 71-78
Tel Aviv 7, 1980, pp. 1-44, Pls. 1-14.
Published in 'Tel Aviv' 7, 1980, pp. 1-44, Pls 1-14. This is the final excavation report of the C... more Published in 'Tel Aviv' 7, 1980, pp. 1-44, Pls 1-14. This is the final excavation report of the Chalcolithic/Ghassulian temple in Ein Gedi. The reader is referred to an additional, complementary paper: "The Chalcolithic Temple in Ein Gedi; Fifty Years after its discovery", published in 'Near Eastern Archaeology' 77, 2014, pp. 15-26, which is uploaded as well on my Academia.edu page.
The Biblical Archaeologist 34, 1971, pp. 23-39
Published in The Biblical Archaeologist 34, 1971, pp. 23-39. This is the first report discussing ... more Published in The Biblical Archaeologist 34, 1971, pp. 23-39. This is the first report discussing the discovery of a Chalcolithic/Ghassulian shrine in Ein Gedi and its possible association with the Nahal Mishmar Hoard.
Published in Agypten und Levante/Egypt and the Levant 31, 2021, pp. 473-486.
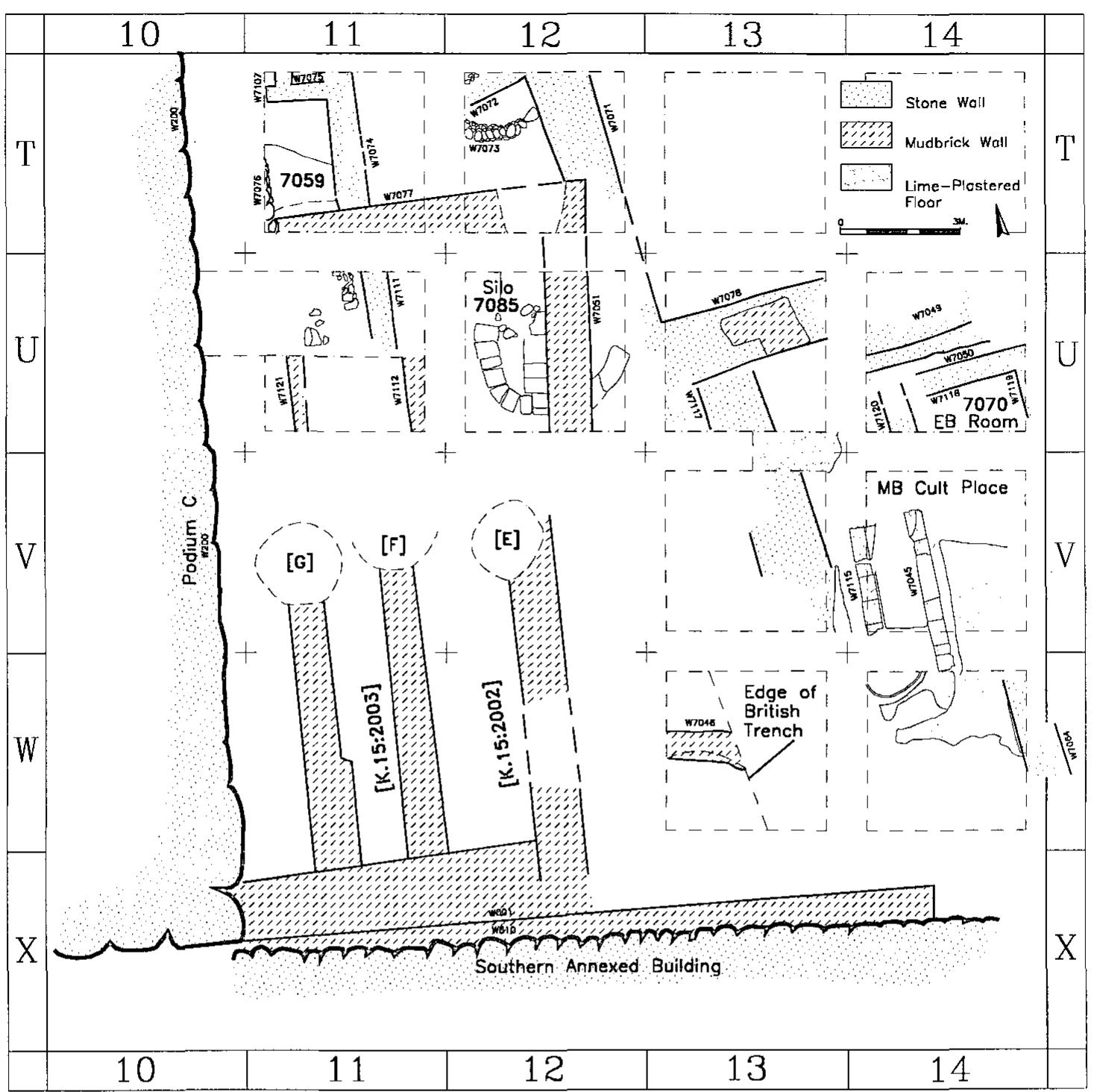
This paper was published in Agypten und Levante/Egypt and the Levant 31, 2021, pp. 473-486. The p... more This paper was published in Agypten und Levante/Egypt and the Levant 31, 2021, pp. 473-486. The paper discusses the history and stratigraphy of the Late Bronze Age palaces of the ruler of Megiddo. Many of the recently-published conclusions of Finkelstein, Martin, Arie and Piasetzky regarding these issues are challenged in the present paper.
Tel Aviv 49, 2022, pp. 115-125.
Published in Tel Aviv 49, 2022, pp. 115-125. The paper discusses the city wall that surrounded Te... more Published in Tel Aviv 49, 2022, pp. 115-125. The paper discusses the city wall that surrounded Tel Aroer in the western Negev. The excavators, Biran and Cohen, dated the wall to the Iron II period. This paper argues that the city wall dates to the Early Roman period, and that the Iron II settlement was unfortified.
This paper was published in Zeitschrift des Deutschen Palastina-Vereins (ZDPV) 137, 2021, pp. 125... more This paper was published in Zeitschrift des Deutschen Palastina-Vereins (ZDPV) 137, 2021, pp. 125-136. The paper discusses the date of the city wall of ancient Hebron (Tell er-Rumeide) known as the "Cyclopean Wall". This wall is usually dated to the Middle Bronze Age. The paper argues that both the "Cyclopean Wall" and the glacis abutting it were built during the later part of the Iron Age when Hebron became an important fortified city in the Kingdom of Judah, and not before.
Published in "In the Highland Depth" - Bama'ave Ha'ar, vol. 10 no. 1, 2020, pp. 39-54
This paper discusses the massive city wall of ancient Hebron known as the "Cyclopean Wall". The p... more This paper discusses the massive city wall of ancient Hebron known as the "Cyclopean Wall". The paper argues that both the Cyclopean Wall and the glacis abutting it date to the later part of the Iron Age when Hebron was an important fortified city in the Kingdom of Judah.
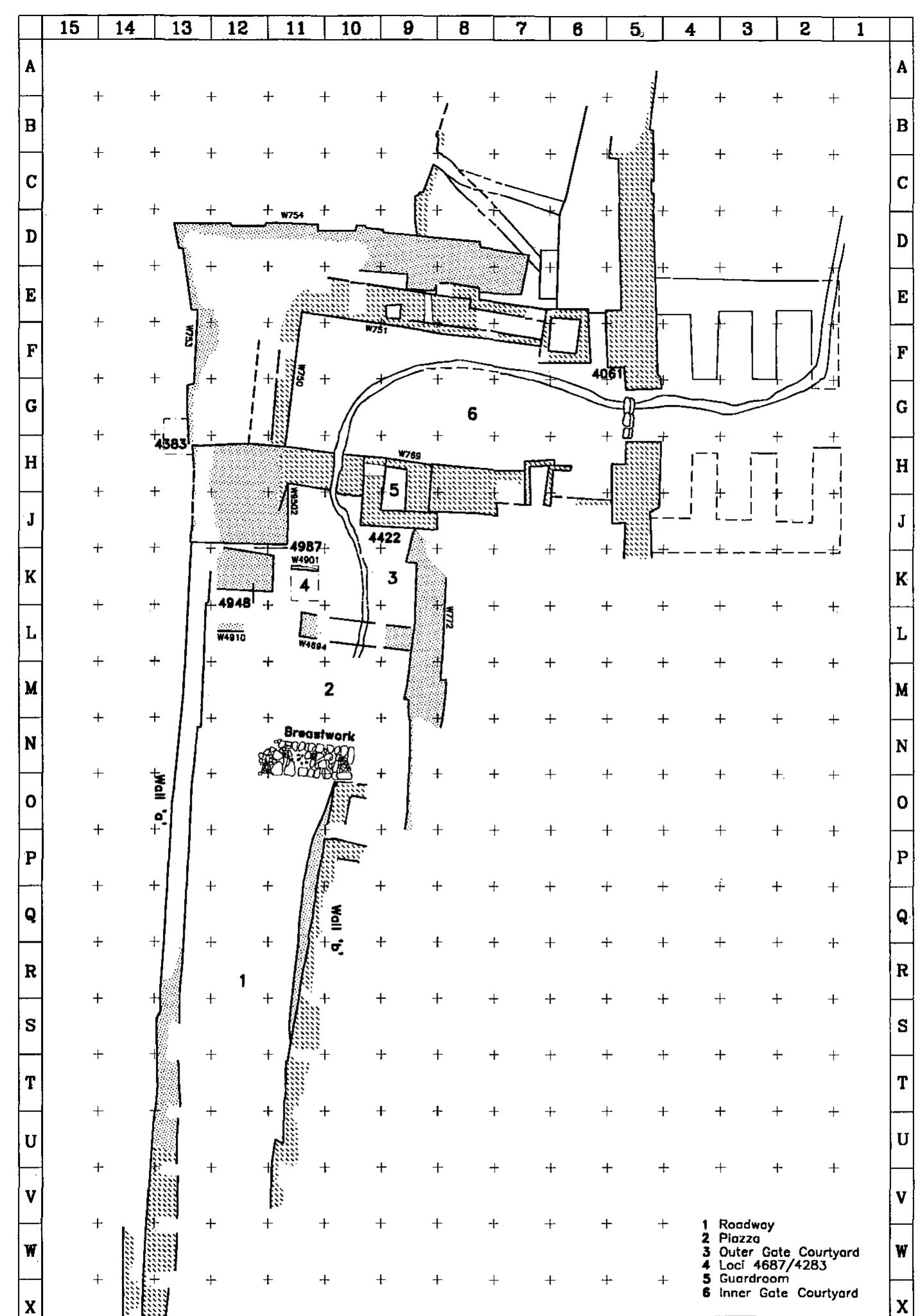
Bulletin of the American Schools of Oriental Research, no. 385, 2021, pp. 153-170
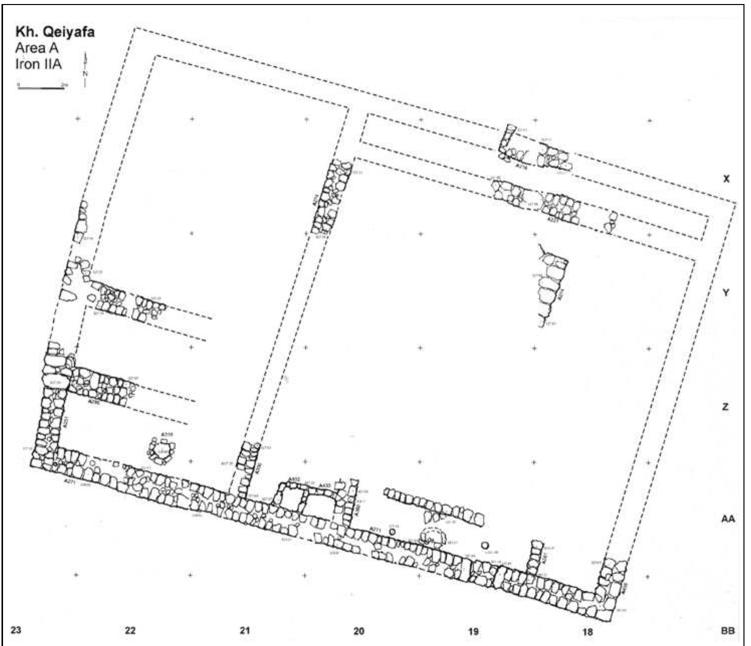
The present paper has four aims. First, it presents an integral picture of the inner gatehouse. S... more The present paper has four aims. First, it presents an integral picture of the inner gatehouse. Second, it argues that there was no gate shrine in the gatehouse. Third, it argues that the assumed gate shrine was not desecrated during the time of Hezekiah's reform. Fourth, it shows that the parallel innermost northern chamber contained an installation of secular nature that parallels that considered to be a "gate shrine" in the other side of the gatehouse.
Published in Tel Aviv, vol. 47, 2020, pp. 246-255.
The stratigraphy and chronology of the Iron A... more Published in Tel Aviv, vol. 47, 2020, pp. 246-255.
The stratigraphy and chronology of the Iron Age gates at Megiddo, particularly the so-called 'Solomonic', six-chambered Gate 2156, have been the subject of a long scholarly debate. In a recent issue of Tel Aviv, Finkelstein et al. described their recent soundings in the area of these gates and suggested a new interpretation of their history. The present paper argues that - contrary to the conclusions of Finkelstein et al.- the stratigraphy and history of this gatehouse should be understood as suggested by the University of Chicago excavators.
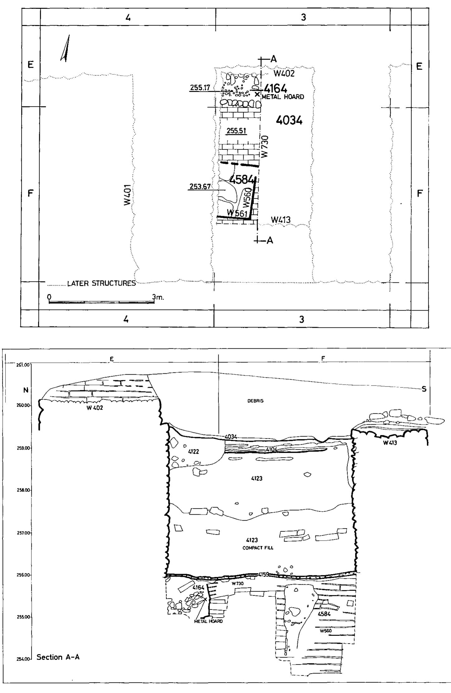
Published in Tel Aviv, vol. 5, 1978, pp. 1-97, pls. 1-32
This is the first preliminary report of the excavations carried out in Tel Lachish by the expedit... more This is the first preliminary report of the excavations carried out in Tel Lachish by the expedition of Tel Aviv University under the direction of David Ussishkin. It describes the finds of the 1973-1977 seasons.
The report was published in Tel Aviv 5, 1978, pp. 1-97, pls. 1-32
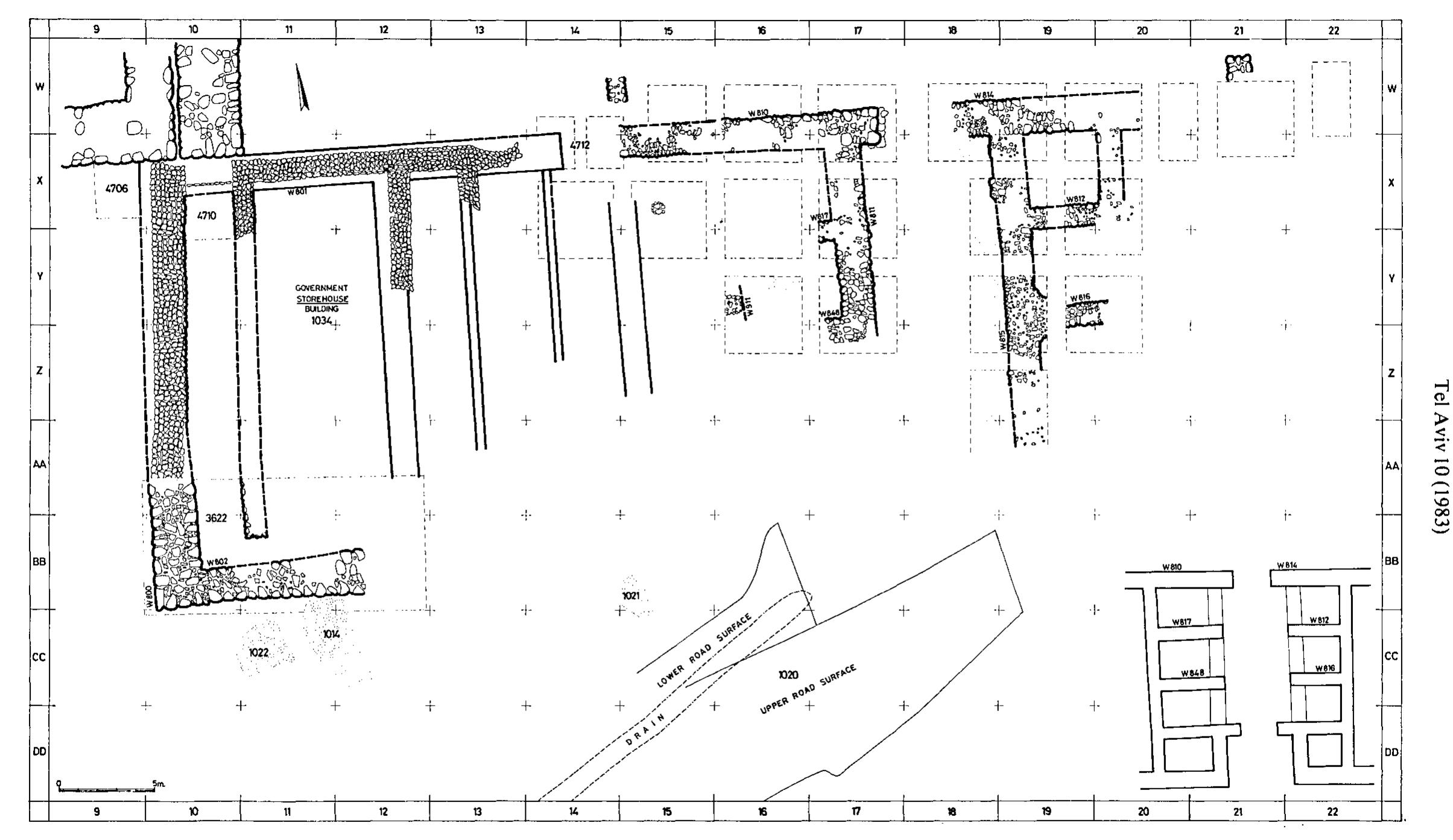
Tel Aviv, vol. 10, 1983, pp. 97-175, pls. 13-43.
This report summarizes the results of the excavations carried out in Tel Lachish in 1978-1983 by ... more This report summarizes the results of the excavations carried out in Tel Lachish in 1978-1983 by the expedition of Tel Aviv University under the direction of David Ussishkin.
It was published in Tel Aviv, vol. 10, 1983, pp. 97-175, pls. 13-43.
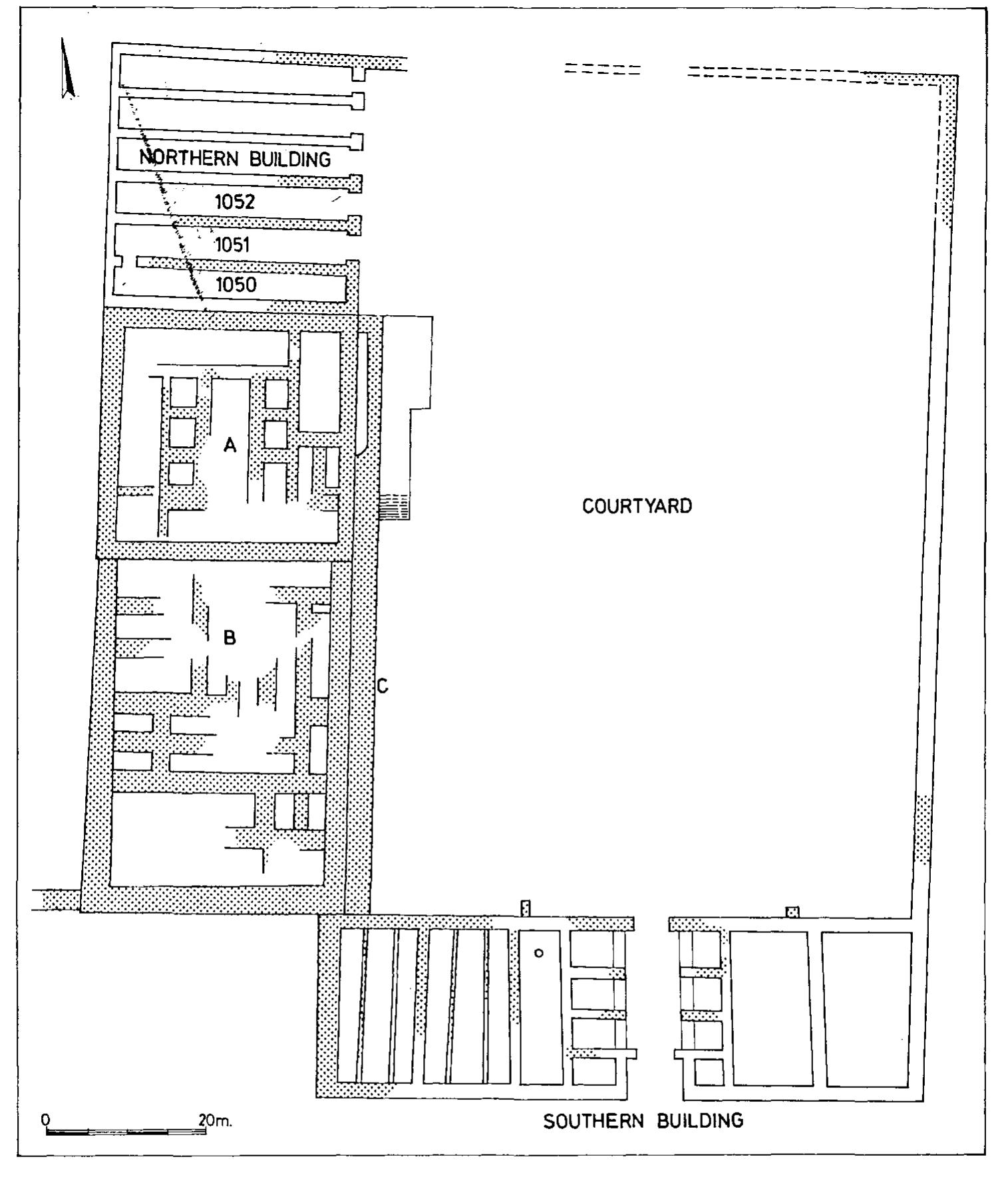
Tel Aviv 23, 1996, pp. 3-60
Megiddo III: The 1992-1996 Seasons (eds. I. Finkestein, D. Ussishkin and B. Halpern), Tel Aviv, 2000, pp. 25-74.
The report discusses the excavations carried out in Area J (Area BB of the Chicago Oriental Insti... more The report discusses the excavations carried out in Area J (Area BB of the Chicago Oriental Institute) during the excavation seasons of 1992-1996. The work concentrated on the Stratum XIX temples, the Great Temple of Stratum XVIII, the Round Altar - all dated to the Early Bronze Age, and the Megara Temples of Stratum XV.
Uploads
Papers by David Ussishkin
The stratigraphy and chronology of the Iron Age gates at Megiddo, particularly the so-called 'Solomonic', six-chambered Gate 2156, have been the subject of a long scholarly debate. In a recent issue of Tel Aviv, Finkelstein et al. described their recent soundings in the area of these gates and suggested a new interpretation of their history. The present paper argues that - contrary to the conclusions of Finkelstein et al.- the stratigraphy and history of this gatehouse should be understood as suggested by the University of Chicago excavators.
The report was published in Tel Aviv 5, 1978, pp. 1-97, pls. 1-32
It was published in Tel Aviv, vol. 10, 1983, pp. 97-175, pls. 13-43.